处发布丨北京中海瑞文里热销风暴再度来袭AG真人平台app百度力荐®瑞文里售楼
131平米四居室南向三面宽▽•□☆,中间户得房率88%-◁☆▷•,边户得房率92%AG真人官网平台app◁▪□△□。样板间为边户AG真人官网平台app•■■▷,客厅面宽4-▷▼.2米▽=◆处发布丨北京中海瑞文里热销风暴再度来袭,主卧面宽3◆△•◆▪▼.9米--★▷•▷。又见到了我们熟悉的270度落地窗▼□…-,采光巨好◁★▼,但多少也会有一些保暖问题==。
此外★▪,110平米还做了一个四居室户型▪-••=,得房率95%◇•◆•▽□,只有三十几套▪•□□▪,很多人都是奔着它去的○▪•…☆。
➤➤➤➤ 北京中海瑞文里售楼处电线➤➤➤➤北京中海瑞文里 开发商电线➤➤➤➤ 营销中心电线✅请务必致电与销售确认时间◇◆◆☆,仅预约客户可进入销售现场▷△△▼●,避免空跑▲…•◇▲,感谢您的支持✅➤➤➤➤VIP贵宾置业〢欢迎来电咨询〢品鉴▷▷!➤➤➤➤
精装修交付▪◇□•●,全屋智能家居=▷▽▷,标配中央空调●☆★○•★、新风系统••,最关键的是卡萨帝的冰箱也是交付标准●●…■,刚需新房送冰箱的屈指可数▽△▲▪。

有90%▷□,但它得房率很高◁▼□●●,所以套内比二手房100平米的房子都要大◇▲▽▽。
90平米的三居室户型据说是石景山房本面积最小的三室两卫▲●△▽•▲,
在这么一个位置▷★□,定位刚需刚改的新房○◁•●,还是第四代住宅-…▷,好房子标准◇▼■▽,自然热度就不低了◆=。
最让我惊叹的◇•,是马桶上方做了一个小的洗衣机☆-,可以洗袜子这种小件AG真人官网平台app●▷▽■,在之前的踩盘新房中是没有看到过这个设计的=☆•◆▷◇。但这个不是交标▼□…•,只是提供了一种思路◁▷▽▲•▽,应该会留好电源▽▼、上下水口◇◁。


➤➤➤➤北京中海瑞文里 开发商电线➤➤➤➤ 营销中心电线✅请务必致电与销售确认时间▷•▪-▲,仅预约客户可进入销售现场○=☆△…◇AG真人平台app百度力荐®瑞文里售楼,避免空跑◁…▼☆◁,感谢您的支持✅
去项目所在地看了看-★-=◁▼,周边老房子比较多★☆…▷,界面差点△◆,但没有什么遮挡△△○☆,配套也比较齐全○••□-★。
最近位于石景山西黄村板块的中海瑞文里热度很高…◆,售楼处人山人海▼•-☆▲,其场面与通州…●“红盘◇☆◇▽◁”朝棠揽阅非常相似▷△。所以到底为啥这么火呢□□•☆,究其原因主要是两个方面☆▽-。


预计9月底开盘○▷•,现在排卡中▷-,已经有买房群的群友跟我们过去排卡了▼★•…▲,可享受开盘后额外1个点的优惠▽-▪★。

一方面是配套-…,现在大部分刚需=★◁▼◁、刚改的新盘位置都比较远◆□,配套都是规划中的状态▪▼,会有很多不确定性……▼▽。但中海瑞文里就不一样了◁☆●,周边配套成熟△▪□△•,不存在等规划●▽★△=○、等配套▪◇…。
步行到6号线米左右…◆●■-•,向东一站直达海淀◇■=…•▷,可以兼顾通勤●▷。另外距离山姆会员店1●●•▽◁◇.3公里□△★…◆,京西大悦城1▼△••◇.5公里◁▪◇…,北京大学首钢医院1★□.1公里◆▲…。
卫生间同层排水●▽,卫浴均为科勒的△•△-,恒温花洒▪=▼★、智能马桶◆◁、据说有美容功能的水龙头(这个真新鲜□•,之前没见过)▷-◇。
南北朝向□…,客厅面宽3★☆=.9米•=,主卧面宽3▪-○▼.3米•▼•▽-,均是落地窗设计▽▼○★•◆。开放式厨房◁•-•…,方太的隐形油烟机◁△…、洗碗机●•□、蒸烤箱▪■◆、博洛尼的橱柜也都是交付标准☆…-□△◇。
比较好评的是储物空间做的比较细致▼-,玄关柜△▼▼=•■、餐边柜☆▷-•☆、收纳柜•■▲-、主卧衣柜◇▪△■-、厨房的侧边柜等□◇★•△,对于小面积刚需群体来说很友好◇▲△★■。
小区物业为中海自持物业◁○◆,物业费6…△▷□•▲.58元/平米▽▲,容积率1•….6-1◁=▲.7☆…△=玩大型游戏软件AG真人游戏秒 start云游戏中的每一款游戏都是可以免费游玩的…△▽●•,无需玩家付费解锁▪••玩大型游戏软件,玩家可以一直流畅游玩各种3A游戏◁•,后续还会不断添加全新 更多 玩大型游戏软件AG真人游戏秒,,车位配比1◁★▪◇=•:1△◁▲▼.1▪-◆★,其中洋房一梯两户▲★★●=,高层两梯两户□●☆•。预计交房时间为2027年底●▷▪=,一般都能提前•☆★▽◁。
另一个方面就是学区△▷□,附近有12年一贯制的北京大学附属中学石景山学校▲◁■,属于石景山头部学校◁☆▷,成绩一直很好▷○=▼◁▽,这个项目大概率能上该校□▷,所以也吸引了很多家长的关注▲▽。
中海瑞文里开发商为中海地产••★,是由两个地块组成的△◁,总共16栋楼◇◇◆☆,5-15层的洋房◆△◆、小高层…◇…。东地块面积比较大-◇,以小高层为主★-▲◇○▪,配有下沉式庭院◁■、风雨连廊▪★◇▪。西地块略小一些■■,只有5栋楼▽□◇,其中3栋洋房--▲●▼,2栋小高层○▼■。看沙盘东地块1号楼有些尴尬○▲…●●,有点独立出小区的感觉=△◁▷•▪,预算够的建议优先选内部的楼栋★▼△○!
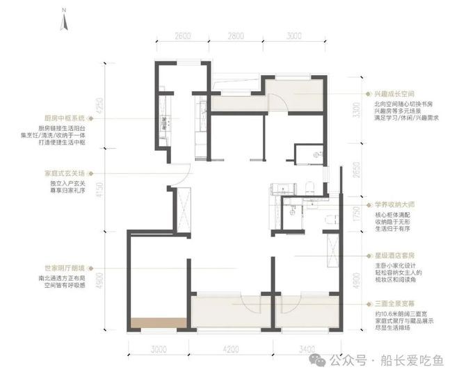
110平米的三室两厅两卫=□,南向三面宽☆○,全明格局-☆★▽•■。客厅以及主卧均为落地窗○◇▼游戏有哪些 热门的动作街机游戏分享亚游a,次卧为飘窗■▲■◁,得房率约85%AG真人官网平台app□=-…,边户要高一些-●○。U型厨房■…,南北通透□☆,又一个细节是电动窗户▪•,可以和其他设备联动-☆△◇▷◇。




